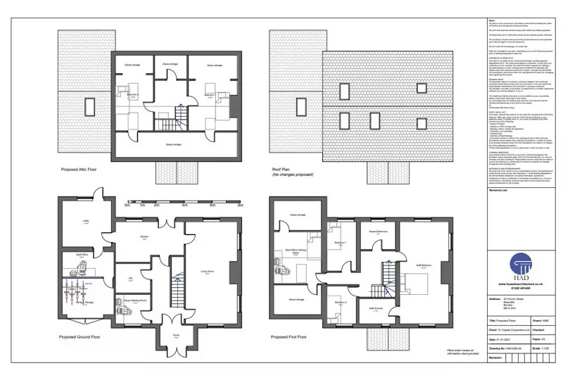
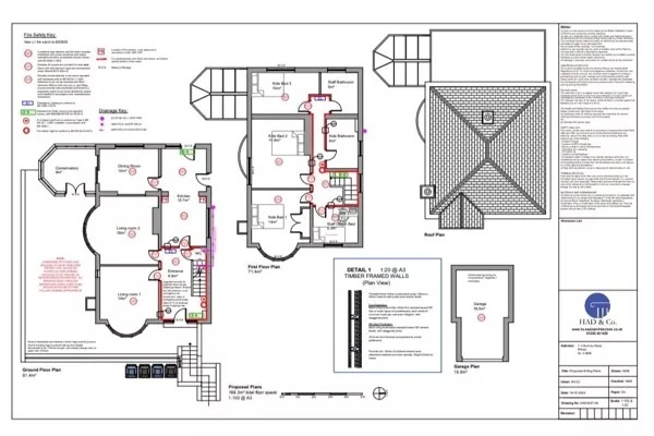
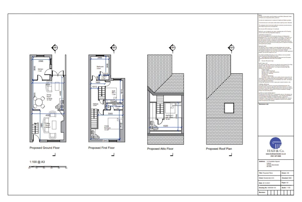
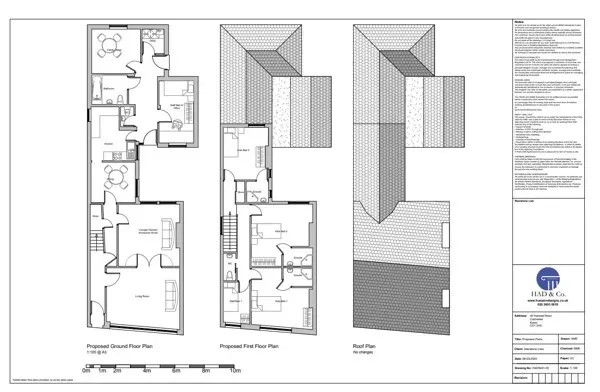
PLANNING APPLICATIONS
Planning Permission
Our planning services skills are available for either stand-alone projects or in conjunction with our architectural design services.
Our sector knowledge includes commercial, residential, retail, leisure, community, education, historic and mixed-use sectors. We are familiar with a number of complex issues and have a fantastic record of securing planning permission both by application and appeal.

